PROJECTS

Back to # projects list

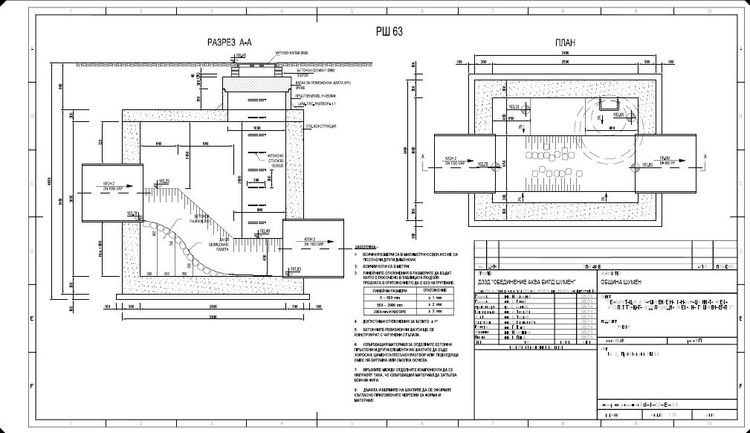
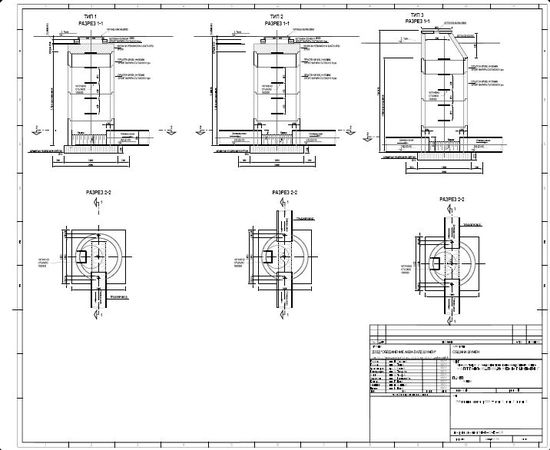
Shumen - Infrastructure Shumen, Bulgaria

Description
Working project for new sewerage pipeline for 11km for town Shumen. The project also include 4.2 km new and renovation of existing water pipelines.
Services
  • Sewage pipelines
  • Water pipelines
  • Structural
  • PBZ