PROJECTS

Back to # projects list

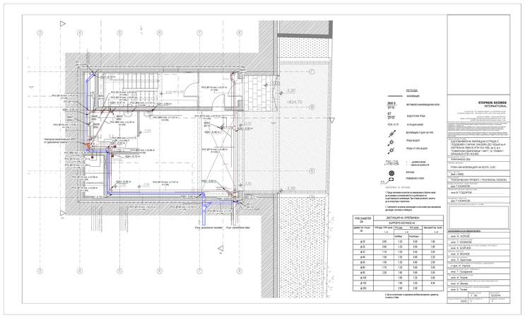
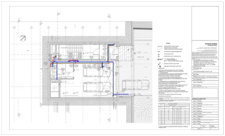
PRIVATE HOUSE, Sofia Sofia, Bulgaria

Description
Residential private house in Sofia. Architectural drawings have been developed ArchiCAD, and exported in IFC. Plumbing installation is designed in Revit. The synchronization between the two programs was very good.
Services
  • Plumbing